Staff Blog

スタッフブログ

4

さよなら「ちゅーピー展示場」①

ちゅーピー展示場が、14年の歴史に幕を閉じます。
2011年8月にオープンした日興ホームの「ちゅーピー展示場」が、2025年7月21日をもちまして閉店することとなりました。
長年にわたり多くの方々にご来場いただいたこのモデルハウスは、8月より解体工事に入る予定です。

このモデルハウスは、私自身が現場監督として携わらせていただいた思い入れの深い建物です。
オープンから現在に至るまで、実に8,675組のお客様にご見学いただきました。心より御礼申し上げます。

現在、日興ホームでお住まいを建てていただいたオーナー様限定で、「ありがとうの気持ちをモデルハウスの壁に描こう!」というメッセージイベントを開催しています。
思い出の場所に手書きでメッセージやイラストを残していただくことで、このモデルハウスが“最後まで記憶に残る家”になればと願っています。

モデルハウスのご紹介(初めての方もぜひ)
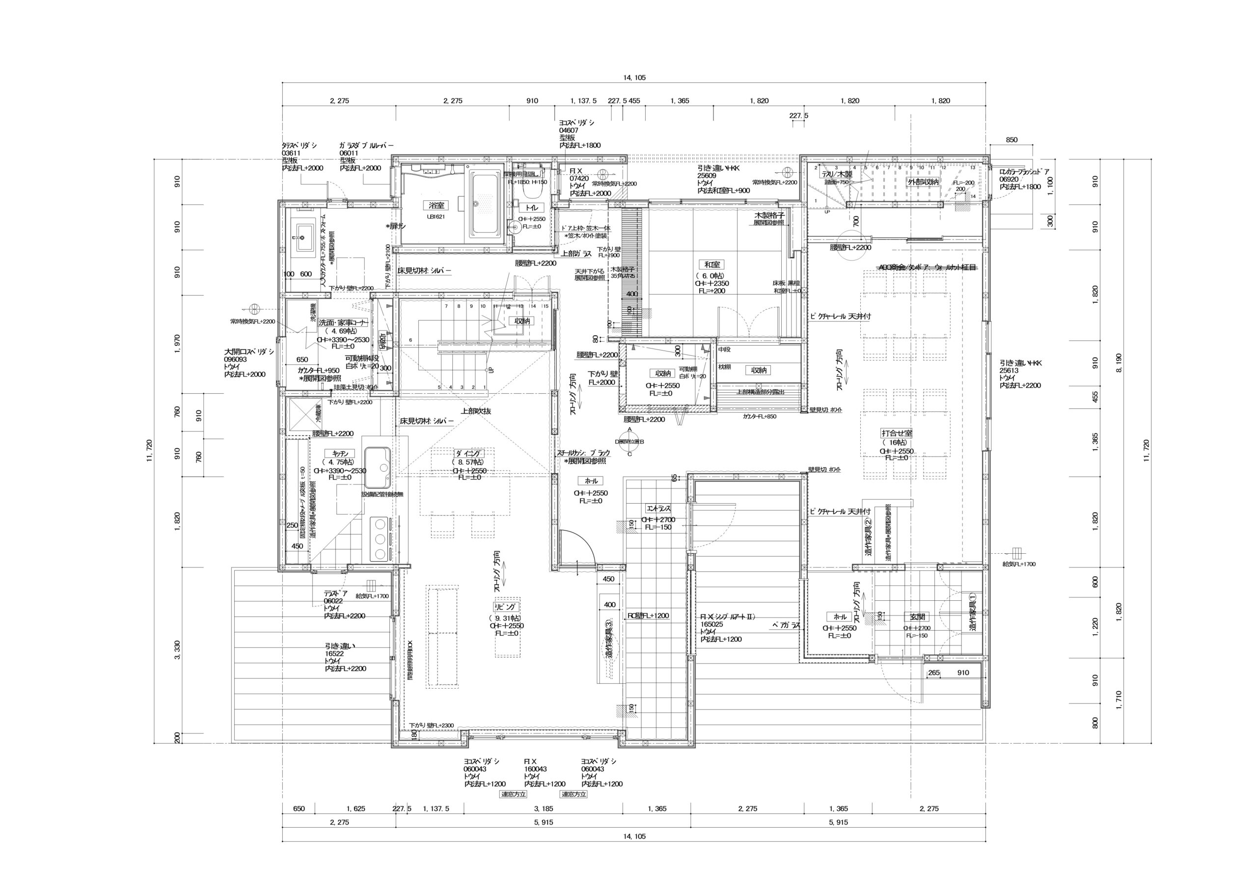
■ 1階
展示場の右側は受付・打合せスペース、左側は生活空間をイメージした住まいのゾーンとなっています。
当時としては先進的だった「水回りの回遊動線」も採用されており、今見ても暮らしやすい間取りです。

■ 2階
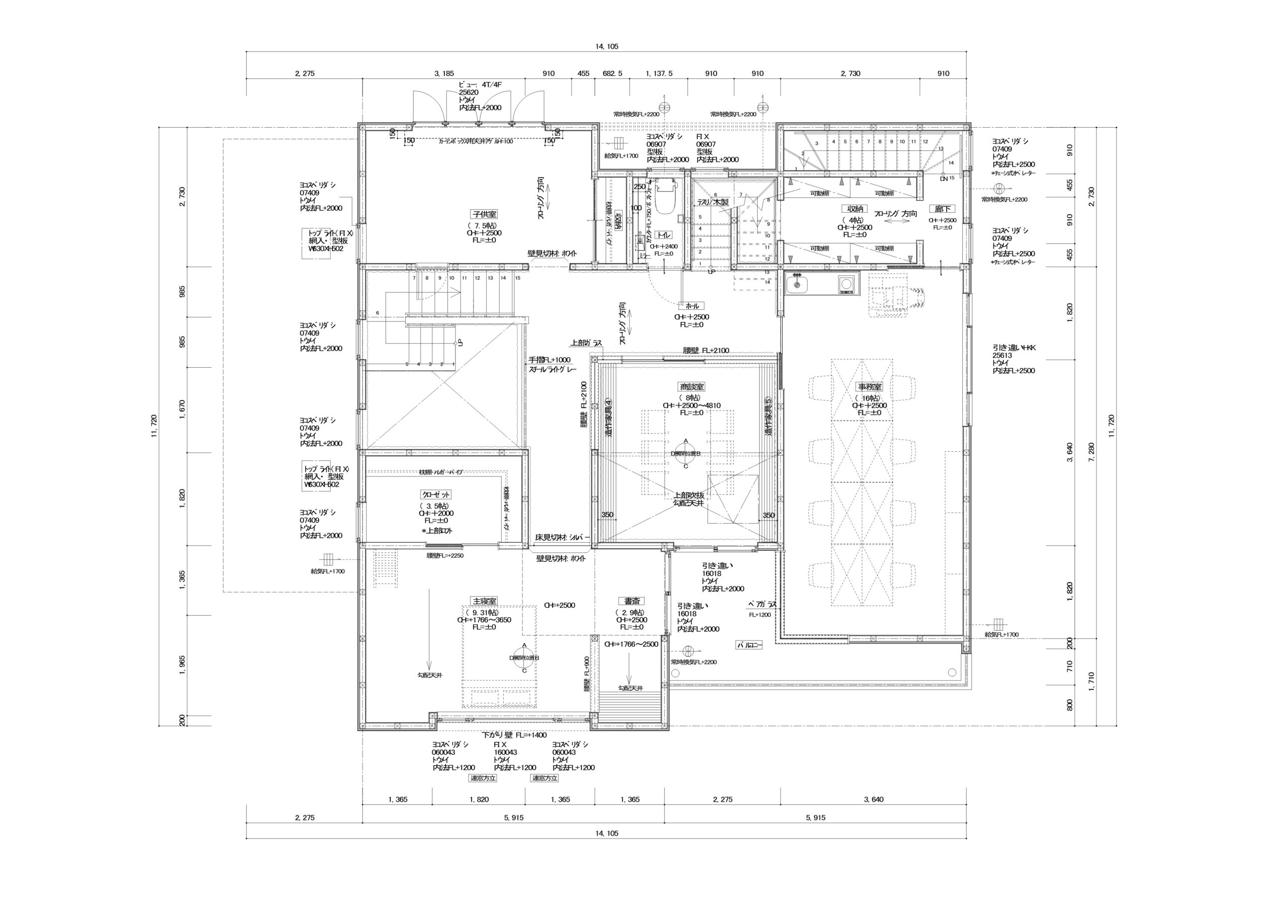
寝室+ウォークインクローゼット、子ども部屋が再現されており、右側はスタッフの控室(広島営業所)として活用されてきました。

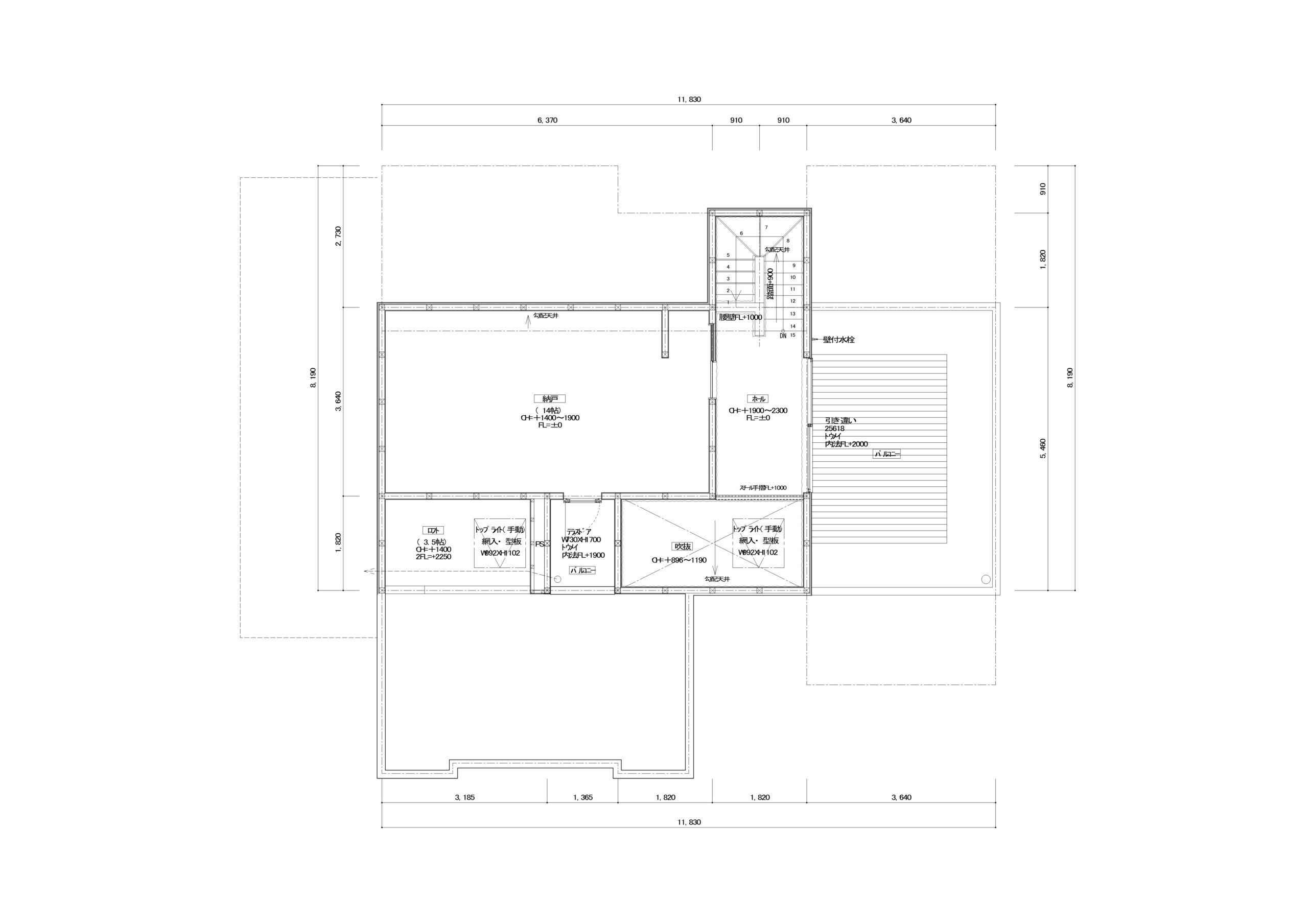
■ 3階
天井高1.8mの小屋裏収納と、開放的な屋上庭園を設けています。
実質的には3階建ての構成となっており、限られた敷地でも立体的に暮らしを楽しめる工夫が詰まっています。

シンプルで飽きのこない外観
切妻屋根に白い塗り壁。
流行に左右されないシンプルな外観は、長く愛されるデザインで、多くのお客様から「こういう家に住みたい」とお声をいただきました。

最後の見学チャンスです!
長年、多くのご家族の“住まいづくり”の出発点となったモデルハウス。
その姿を見られるのも、あとわずかとなりました。

ご見学がまだの方も、何度もお越しいただいた方も、ぜひ最後に足をお運びください。
スタッフ一同、皆さまのご来場を心よりお待ちしております。

どうぞ、ちゅーピー展示場との“お別れ”を見届けに来てください◎

 

Blog Category

カテゴリー